Fundamenta
HR
|
EN
|
DE
|
FR
|
RU
Home
About us
Activities
Projects
Building technology
References
Split and surroundings
Projects » Project Rupotine »
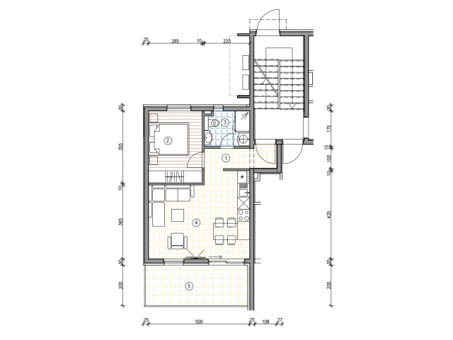
Realestate type:
flat
No. of rooms:
1
Surface area:
42,04 m²
Floor:
first/3
Orientation:
West
Moving in from:
Listopad 2023
Price: kn:
N/A
Price: €:
N/A
about project
Send an inquiry
Project Rupotine
Description
Location
Gallery
Properties
Projekt vile Plano - Trišnja
Project Neslanovac
Project Žnjan 2, Split
Project Žnjan, Split