Fundamenta
HR
|
EN
|
DE
|
FR
|
RU
Home
About us
Activities
Projects
Building technology
References
Split and surroundings
Projects » Project Žnjan 2, Split »
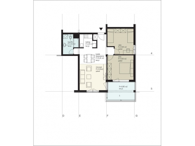
Blueprints
Realestate type:
flat
No. of rooms:
2
Surface area:
75,75 m²
Floor:
third
Orientation:
South
Moving in from:
Price: kn:
N/A
Price: €:
N/A
about project
Send an inquiry
Project Rupotine
Projekt vile Plano - Trišnja
Project Neslanovac
Project Žnjan 2, Split
Description
Location
Gallery
Properties
Project Žnjan, Split